AARDEアルデ
AARDEとは「土」。人は、原初の素材の一つである土と、縄文の頃から共に生きてきた。土にうずくまるように。土に抱かれるように。遺伝子レベルで私たちに刻まれたその「土間」への敬慕とも言える感情に、AARDEは応える。どこか大地へ還っていくような、特徴的なプロポーションの外観。黒モルタルで仕上げられた内部の土間。AARDEに住んで、土間に薪ストーブを置いて、夜の帳の下で火を焚いてみて欲しい。原初の「火の間」が、あなたの遺伝子を震わす情景を立ち上げてくれる。
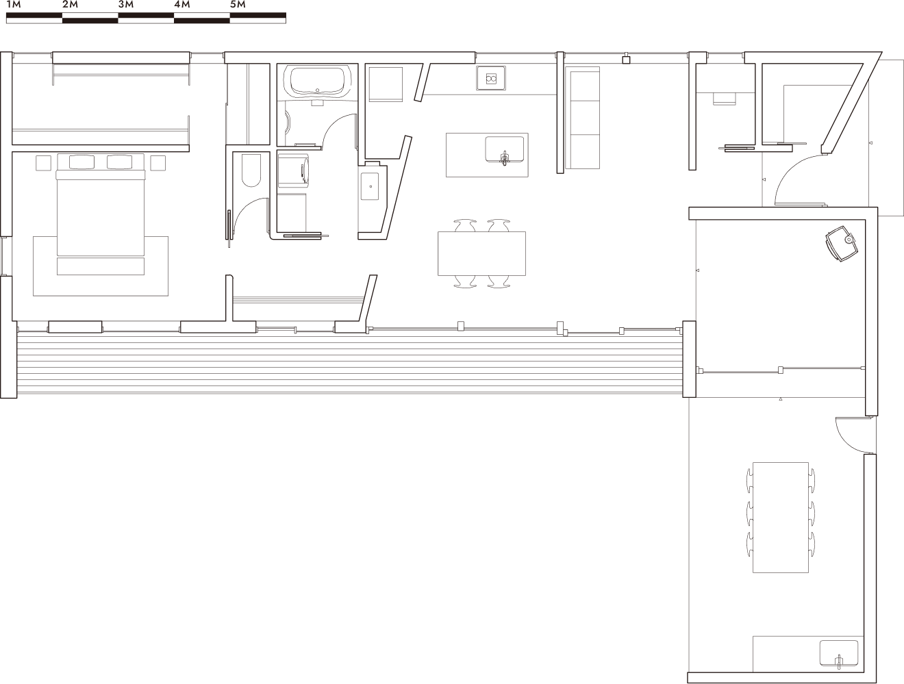
PLAN DATA
土間仕上げの「火の間」と「エクステリア・ダイニングスペース」を携えた、1LDKのラグジュアリープラン。短手では緩やかな勾配の長屋根がAARDE特有の美しいプロポーションを生み、左官仕上げの外壁に穿たれたアールの木製扉が可愛らしさのアクセントとなっている。絵本の様な扉の向こうには、エクステリア・ダイニングスペース、庭、長手の縁側がまるで別世界の様に拡がっている。長手のプランをスライスするように引かれた対角線は、この特別な外空間とLDKを強く結びつける為の重要な意匠となっている。※規格住宅ではありません
※この間取りは参考プランです
AARDE_PLAN 01
1LDK-大外土間
- 住宅床面積
- 100.00㎡/30.25坪
- ポーチ
- 5.00㎡/1.50坪
- デッキ
- 19.50㎡/6.00坪
- 外ダイニング
- 22.00㎡/6.75坪











